Work
Projects
Resume
About
Contact
Work
Projects
Resume
About
Contact
Christian Fox
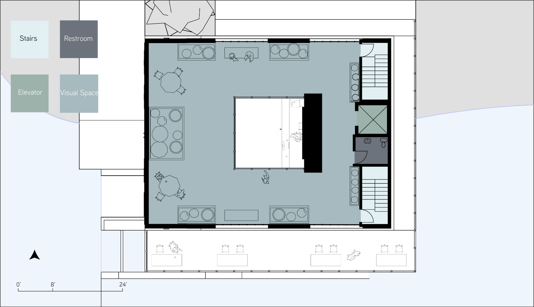
Peninsular Paper Mill
Integrated Design 2 Project: Renovation of a Decommissioned Paper Mill Dam.
You may also like
2 Buildings Project
2023
Integrated Designs inc. Renders
2022
Reframe An Item
2019
Hotel Room Project
2023
House in the Museum Garden
2020
Abstract Art Project
2023
Banana Box
2019
Board Game
2019
Orthotope
2019
Architecture in Landscape
2020
↑
Back to Top